
argentum
Al fine di restituire il sibilo lungo del dialogo eterno tra uomo e terra, il progetto delinea un luogo della contemplazione critica dei valori di una società in continuo cambiamento: un sito/evento di riflessione introspettiva e collettiva, spazio esperienziale che trasporti in una realtà altra, tessuta dalla trama di fiabe e ferma nel ricordo di un’immagine bucolica tra storia, mito e scenari futuri. Tramite un’operazione di astrazione delle caratteristiche del paesaggio leccese, in un processo mondriano di sintesi massima dell’elemento naturale, un uliveto diviene selva di pali metallici, alberi d’argento le cui chiome sono tessuti definenti trame e piegati a elementi di arredo.
L’installazione si propone come dispositivo temporaneo di implementazione dello spazio pubblico, plug-in/ interruttore di relazioni sociali e stimoli sensoriali. La configurazione a griglia permette una totale reversibilità e trasformabilità degli spazi, definiti attraverso teli rimuovibili che rimangono filtri senza mai divenire muri. Il progetto è quindi aperto ad ogni possibile mutazione in base all’organizzazione o meno di mostre ed eventi: con poche, semplici modifiche è possibile passare da spazi ristretti ad ambienti dall’ampio respiro, da luoghi di incontro a luoghi di esposizione.
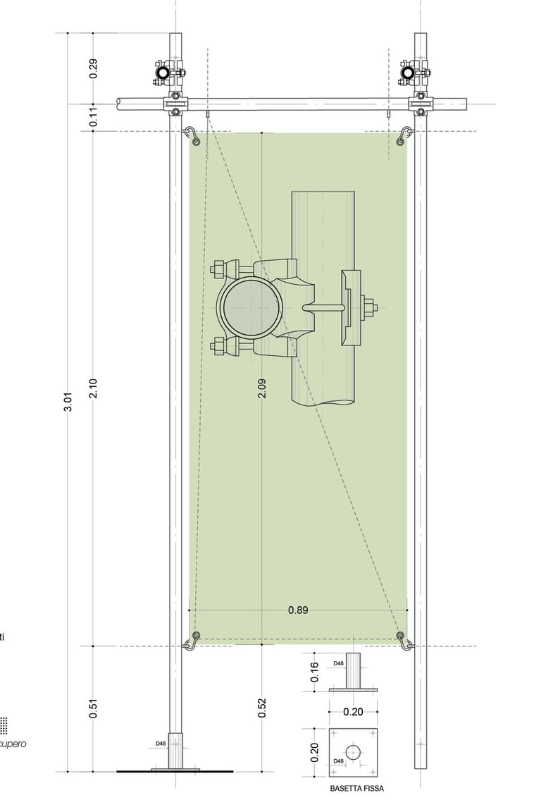
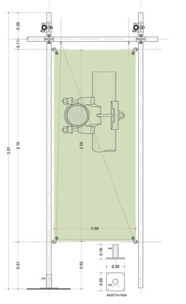
Dal punto di vista materico, per i tronchi la scelta è ricaduta sull’utilizzo di tubi innocenti, che per la loro semplicità costruttiva permettono di assemblare e disassemblare l’installazione in modo veloce ed efficiente, così da reinserire gli elementi nella filiera edile al momento della dismissione dell’opera. Per quanto riguarda i teli sono stati poi scelti diversi materiali che tramite colori, texture e pattern restituiscono una notevole varietà nella definizione delle chiome: è stato scelto di recuperare reti e tessuti dismessi legati alla produzione agricola locale (raccolta delle olive, frangiventi, ombreggianti), riattivandone il ciclo di vita e posticipandone lo smaltimento nel momento in cui non soddisfano più i requisiti relativi alle prestazioni attese per la loro funzione originale. Si definisce così un caleidoscopio di rigidi sostegni e tessuti flessibili dalle trame colorate che restituisce spazi mai definiti, in cambiamento e movimento perpetuo.
La piazza assume quindi ruolo di vasto campo rispetto al bosco fitto, in un rapporto di contrapposizione tra sito e installazione che diviene di scambio reciproco nell’aumentare la vivibilità degli spazi senza snaturarne le funzioni originali: ritrovo, confronto, dialogo, interazione. In questo modo, visitatori rumorosi e sentinelle silenziose si fondono in un luogo mistico, muovendosi in una danza plurale attorno agli alberi-pali le cui chiome-reti si agitano al ritmo di un vento-tempo infinito.


il sibilo lungo del dialogo eterno tra uomo e terra








